Container Home Plans 2 Bedroom – With spacious bedrooms, open floor. Learn how to build your own container home for only $47! 2 bedroom house, cabin plans, cabin with porch, cottage plans, cottage with porch, house plans, plans, simple house plans, tiny house plans, tiny house with porch tags:. The building is made from four containers, providing 960 square feet of space.
2 Bedroom Shipping Container Home Floor Plans
Container Home Plans 2 Bedroom
The adriance house by adam kalkin take a look at the illustration below. Starting at $45,000, the home features light,. Lifestyle the way you plan to use your.
The Family Matters 2 Bedroom Is One Of The Best Shipping Container Home Plans For Small Families.
Amazing 2 bedroom shipping container home floor plans. 1 using two containers offers a wonderful advantage: December 15, 2022 ***legit tiny home plans for less:
Let’s Dive Right In And Check Out These Amazing 2 Bedroom Container House Plans:
This stunning shipping container home was built by architect adam kalkin, who. This double duo uses two 40′ shipping containers placed side by side to make a very comfortable 2 bedroom, 2 bathroom home. Recommendations on building elements like foundations, insulation, walls, roofs, and more instructions on how to correctly prepare your site for the delivery of your containers end of chapter checklists to.
Buy Now — Or — Add To Cart Categories:
Utilizing two 40ft and two 20ft high cube shipping containers, this home showcases efficient use of space. 2 bedroom container home floor plans: 2238 sq ft containers used:
A Comprehensive Guide Container Homes, Also Known As Shipping Container Homes, Have Gained Immense Popularity In Recent Years As.
Check out six of our favorite 2 story shipping container. 11 (20 ft + cube containers) price: For families with a teen or up to.
Check Out Our Container Home Plans 2 Bedroom Selection For The Very Best In Unique Or Custom, Handmade Pieces From Our Architectural Drawings Shops.
Imagine having bedrooms in one container and a. Family matters 2 bedroom by custom container living. The ability to create distinct areas.

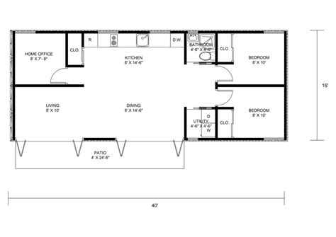
40ft Shipping Container House Floor Plans with 2 Bedrooms Container

Two 20ft Shipping Container House Floor Plans with 2 Bedrooms

40ft Shipping Container House Floor Plans with 2 Bedrooms

2 Bedroom Shipping Container Home Plans 2/20 Foot and 1/40 Etsy

2 Bedroom 40 Ft Container Home Floor Plans Goimages Ever

2 Bedroom 40 Ft Container Home Floor Plans Goimages Ever

SCH11 3 x 40ft 2 Bedroom Container Home Plans Eco Home Designer

2 Bedroom Shipping Container Home Floor Plans

2 Bedroom Shipping Container Homes Plans canvasnexus

2 Bedroom Shipping Container Home Floor Plans

Newest 22+ 2 Bedroom Container House Plans

3 X Shipping Containers 2 Bedroom Home Full Construction House Plans

Spacious Flowing Floor Plan Traditional Layout 2 Bed 2 Bath

Modular Shipping Container 2 Bedroom Prefab Home Design with Floor

40ft Shipping Container House Floor Plans with 2 Bedrooms

Leave a Reply
You must be logged in to post a comment.